Dom na sprzedaż

Suchożebry, Kownaciska

5 pokoje
125.61 m²
4 768,73 zł/m2
NVH-DS-1604
Oblicz ratę kredytu

599 000 zł

Oferta na wyłączność

Szczegóły oferty

Symbol oferty NVH-DS-1604
Powierzchnia 125,61 m²
Powierzchnia użytkowa [m2] 101,90 m²
Powierzchnia działki [m2] 1 000 m²
Liczba pokoi 5
Rodzaj domu wolnostojący
Standard
Liczba pięter w budynku 1
Wymiary działki 40,5x24,5 m
Okna PCV
Instalacje dobre
Balkon brak
Zagosp. działki częściowo zagospodarowana
Ukształtowanie działki płaska
Kształt działki prostokąt
Pokrycie dachu blachodachówka
Stan budynku do wykończenia
Ogrodzenie działki brak
Rok budowy 2024
Gaz brak
Woda studnia
Dojazd droga gruntowa
Otoczenie działki niezabudowane
Odl. do sklepu [m] 1 700 m
Odl. do szkoły [m] 4 500 m
Odl. do przedszkola [m] 4 500 m
Prąd jest
Kanalizacja własna oczyszczalnia

Opis nieruchomości

Dom szkieletowy 101,9 m², Kownaciska, blisko Siedlec – NovoHome - wybudowany przez firmę "Domy i Dachy"

Opis nieruchomości: Na sprzedaż nowoczesny dom parterowy o powierzchni użytkowej 101,9 m², położony na działce 1000 m² w malowniczej miejscowości Kownaciska, zaledwie 12 km od Siedlec. Dom w stanie deweloperskim, z drewnianą konstrukcją szkieletową, oferuje energooszczędność, trwałość i zdrowy mikroklimat, idealny dla osób ceniących spokój, kontakt z naturą i możliwość własnej aranżacji wnętrz.

Szczegóły nieruchomości:

  • Powierzchnia użytkowa: 101,9 m²
  • Działka: 1000 m²
  • Liczba pokoi: 4
  • Stan wykończenia: Deweloperski (możliwość indywidualnej aranżacji wnętrz)
  • Konstrukcja: Drewniana szkieletowa, energooszczędna
  • Media: Prąd doprowadzony, instalacja elektryczna wyprowadzona na zewnątrz, kran zewnętrzny
  • Ogrzewanie: Przygotowana instalacja pod pompę ciepła lub gaz ze zbiornika, zagęszczone ogrzewanie podłogowe w łazienkach
  • Woda: Możliwość wykopania studni głębinowej dla niezależności wodnej
  • Oczyszczalnia ścieków: Do wyboru odpowiedni system

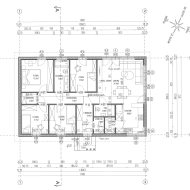
Układ pomieszczeń (101,9 m²):

  • Wiatrołap: 5,49 m²
  • Pomieszczenie techniczne: 1,93 m²
  • WC: 2,89 m²
  • Pokój dzienny z jadalnią: 24,19 m²
  • Kuchnia: 9,68 m²
  • Spiżarnia: 1,93 m²
  • Pokój: 9,95 m²
  • Łazienka: 5,65 m²
  • Pokój: 12,16 m²
  • Przedpokój: 7,81 m²
  • Garderoba: 2,02 m²
  • Pokój: 9,11 m²
  • Pokój: 9,09 m²

Atuty nieruchomości:

- Malownicza lokalizacja: Spokojna okolica otoczona lasami, z małą zabudową jednorodzinną, zaledwie 12 km od Siedlec.
- Energooszczędność: Drewniana konstrukcja szkieletowa i przygotowanie pod nowoczesne systemy ogrzewania (pompa ciepła lub gaz).
- Elastyczność aranżacji: Stan deweloperski pozwala na personalizację wnętrz według własnych preferencji.
- Duża działka: 1000 m² przestrzeni na ogród, rekreację lub inne potrzeby.
- Niezależność wodna: Możliwość wykopania studni głębinowej dla dostępu do świeżej wody.

Dodatkowe informacje: Dom w Kownaciskach to idealna propozycja dla osób marzących o życiu w harmonii z naturą, z dala od miejskiego zgiełku, ale z łatwym dostępem do Siedlec. Funkcjonalny układ pomieszczeń, duża działka i nowoczesna konstrukcja sprawiają, że jest to atrakcyjna oferta dla rodzin lub osób szukających domu do indywidualnego wykończenia.

Finansowanie: Potrzebujesz kredytu hipotecznego? Nasi eksperci finansowi w NovoFinance bezpłatnie pomogą Ci wybrać najlepszą ofertę i przeprowadzą przez cały proces.

Zapraszamy do kontaktu! Skontaktuj się z nami, aby dowiedzieć się więcej i umówić na prezentację domu. Z NovoHome znajdziesz swoje wymarzone miejsce w Kownaciskach!

Uwaga: Opis oferty sporządzono na podstawie oględzin nieruchomości oraz informacji od właściciela. Może podlegać aktualizacji i nie stanowi oferty w rozumieniu art. 66 i następnych K.C.

Kalkulatory

Kalkulator kredytowy

Wysokość raty

PLN
%

Kalkulator kosztów

Podatek od czynności cywilno-prawnych

Taksa notarialna
(opłata notarialna)

Wniosek o wpis do WKW

VAT od prowizji
agencji nieruchomości

Vat od taksy notarialnej
(opłaty notarialnej)

Prowizja agencji nieruchomości

Wypisy aktu notarialnego

Razem

Uwaga: mogą wystąpić dodatkowe opłaty za założenie księgi wieczystej oraz ustanowienie hipoteki.

PLN
PLN
PLN
PLN
PLN
PLN
%
PLN

Proszę wprowadzić poprawne imię i nazwisko
Proszę wprowadzić poprawny numer telefonu
Proszę wprowadzić poprawny adres e-mail
Proszę zaznaczyć wymagane zgody
Rozwiąż równanie:
11 3
Niepoprawny wynik